Leistungen - HE Elektro

Direkt zum Seiteninhalt

Hauptmenü:

Leistungen

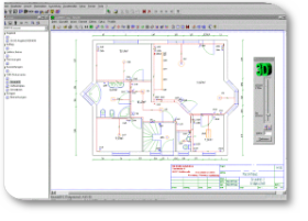
CAD Elektroplanung/Revisionspläne
Zukunftsorientierte Planung spart Kosten
Bevor Sie mit der Installation beginnen müssen alle für eine intelligente Hausinstallation erforderlichen Komponenten geplant werden.Außerdem muss bei der Planung der Energieeffizienz-Gesichtspunkt beachtet werden.Nach dem Ende der Rohbauinstallation besteht in der Regel keine Änderungsmöglichkeit mehr,außer mit erheblichen Mehraufwendungen. Deshalb ist die Planung im vorhinein besonders wichtig.
Licht und Kraftanlagen
Ausführung sämtlicher Licht und Kraftanlagen incl.Baubetreuung wenn erforderlich sowie Planung der Anlage und Wartung

SAT Anlagen
Errichtung digitaler SAT-Anlagen,sowie BK-Anlagen mit Deutschen Markenherstellern
Beleuchtungsanlagen/LED Beleuchtung
Ausführung sämtlicher Beleuchtungsanlagen incl. Planung und Berechnung
Umrüstung vorhandener Beleuchtung auf LED Betrieb,LED Hallenstrahler
 
Zurück zum Seiteninhalt | Zurück zum Hauptmenü